Mansion

Multi Family Home

New Development

REMARKABLE GOLDEN EIGHT, CABO PINO MARBELLA VILLA, IN CONSTRUCTION

Calle De La Playa 3017c, 29604 Marbella, Málaga

€ 12500000

For Sale

Description

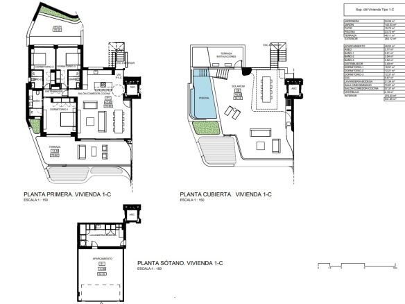
Golden Eight, is an exclusive luxury complex composed of 8 homes in the best area of the Costa del Sol, overlooking the sea, the southwest orientation ensures the best sun exposure and spectacular panoramic views, we have taken care of every detail with an innovative design, a privileged location, just 5 minutes from the spectacular dunes of Artola, for golf lovers, you can enjoy the golf course of Cabo Pino and only 15 minutes from the city of Marbella and 30 minutes from Malaga airport.

 

You need a home that can keep up with your pace, one that invites you to feel and live intensely. In With us, you not only have the best qualities and features, from flooring and finishes in kitchens and bathrooms to interior design and decoration advice, but it also presents a true opportunity to incorporate details that speak of who you are.

 

For further information or assistance, please feel free to contact us

(The information provided on prices, specifications and details of this promotion is subject to possible variations and changes depending on the promoter. Therefore, it does not have a commercial value in itself, but is merely informative and indicative.)

Overview

House ID

1390

Property Type

Mansion

DMARTIS & SOMAY © All rights reserved.